REMODELERS SHOWCASE FALL 2016
This year’s Remodelers Showcase Home Tour features a complete kitchen renovation resulting from a dishwasher flood disaster. The main floor water damage was extensive, not only damaging the kitchen and main living area but the ceiling in the lower level below.
We worked closely with the homeowner’s insurance company to make sure the claim was consistent with a realistic and comprehensive budget. Beyond that settlement, the client saw an opportunity to finally correct a multitude of insufficiencies and design improvements in her kitchen and the main floor storage areas.
With our collaborative help, the client finally realized the long-dreamed-of chance to redesign their entire kitchen, add storage, and update interior finishes throughout the main floor including retexturing ceilings throughout—returning functionality and beauty to her home.

As part of our service we worked with the insurance company to establish an adequate budget for this extensive restoration project.
Before





After
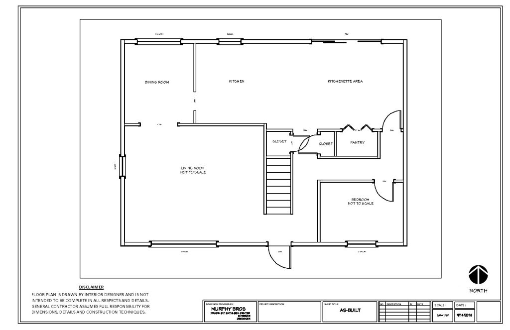
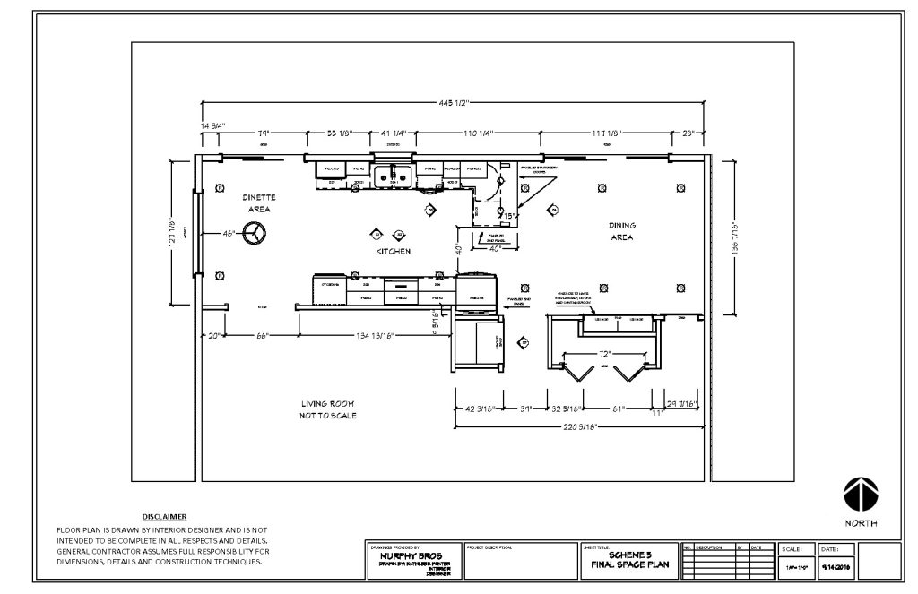
Storage was also an issue. The homeowners wanted to consolidate and enhance their ability to store common items with easier access. So, we combined 2 closets into 1 with easy access to the kitchen and created a large entry hallway closet.
Space was another concern that had to be addressed in the layout of the kitchen and adjoining dining room. By knocking out the wall between the two rooms we were able to dramatically increase, cabinet storage, available light, traffic flow and deliver a larger dining area. With the new connection between the kitchen and the dining/living room, we needed to hand-tooth new hardwood flooring seamlessly into existing oak.



Featured Materials
WINDOWS
- Richlin fixed light, & patio door w/Lowe DS, Argon
CABINETRY
- Custom Hardwood enameled (Benjamin Moore) White Wisp
COUNTERTOPS
- Vicostone Countertops: Venatino (BQ8660) 3cm
- Kitchen backsplash set 3×9″ glass tile.
PAINT
- (Benjamin Moore) Chelsea Gray
